



Description
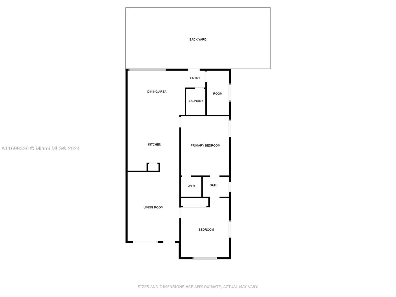
Discover this charming duplex in oakland park, offering 1,350 sqft per unit, just minutes from the beach! each unit features 2 bedrooms and a small den, perfect for a home office or extra space. The south unit has two bathrooms, while the north unit has one. Both units include a den, living room, open kitchen, dining area, and a convenient laundry room. Tiled floors and central ac provide modern comfort. Enjoy a fenced backyard, shed, and four dedicated parking spots. Both units are tenant-occupied, with tenants covering all utilities and the landlord only responsible for yard maintenance. Floorplans and photos are from the north unit. Financials upon request. Don’t miss out on this income-generating property close to the beach!...
Caractéristiques
Prix
$900,000
Référence
MIA403792437
Type
Apartment
Jours sur le marché
105
Année de construction
1963
Status
Active
Commodités
Air Conditioné
Buanderie
Parking
Spa
Situation du bien
Données fournies par Miami Board of Realtors. Avec l'aimable autorisation de Barnes International Realty, LLC. Ces informations sont fiables, mais non garanties. Leur authenticité et leur exactitude n'ont pas été vérifiées et peuvent ne pas refléter l'activité actuelle du marché immobilier. Copyright 2025. Tous droits réservés.
































